当前位置:网站首页技术文章 > 医药包装材料质量安全与检测

医药包装材料质量安全与检测

更新时间:2024-02-20 点击量:1657
  药品的质量安全直接影响到国民健康,药品包装作为药品的重要组成部分,在产品出厂后的质量保护方面扮演着重要的角色。为了确保用药安全,我国陆续颁布相关法规,将药品包装及包装材料的质量检验列为药品企
 
  必需开展的重点工作之一;药品行业不仅要关注药品安全,药品包装的安全也同样同样重要。
 
  医药包装质量对药效的影响大,不可以掉以轻心。与食品相比药品的包装要求要严格很多,有效期也比较长,医药包装的性能要确保药品在保质期内药效稳定可靠。
 
  i.                      药品的包装形式
 
  医药品一般有液体、粘稠体、固定等多种形式,使用的方式也分为口服、擦拭、注射等多种。所以医药包装形式有很多种,市场上常见的有泡罩包装、双铝包装、复合膜袋包装、塑料瓶包装、玻璃瓶包装等多种形式。
 
药品包装形式.png
  ii.                      医药包装质量检测与控制需求
 
  国家药品监督管理局自2002年至2006年连续版布了 《直接接触药品的包装材料和容器标准汇编》统一与 规范药包材的质量标准与检验方法。汇总药品包装相应规范,检测与控制指标主要包括:阻隔性能、机械性能、滑爽性、厚度、溶剂残留、密封性能、瓶盖扭力、顶空气体分析、印刷质量等。
 
  阻隔性能
 
  阻隔性能指药品包装材料防止氧气、氮气、二氧化碳等气体以及水蒸气等物质透过的性能。
 
  1.                      气体透过量测定法
 
  气体透过量系指在恒定温度和单位压力下,在稳定透过时,单位时间内透过试样单位面积的气体的体积。以标准温度和压力下的体积值表示,单位为: cm³/ ( m². 24h .0. 1MPa ) 。《YBB00082003-2015气体透过量测定法》中规定了两种测量方法,第一法为压差法,第二法为电量分析法(本法仅适用于检测氧气透过量)。
 
  1.                      水蒸气透过量测定法
 
  水蒸气透过是系指在规定的温度、相对湿度, 一定的水蒸气压差下,试样在一定时间内透过水蒸气的量。药用薄膜、薄片及药用铝锚的水蒸气透过盘系指在规定的温度、相对湿度, 一定的水蒸气压差和一定厚度的条件下, 1 平方米的试样在24 小时内透过水蒸气的量。单位为: g/( m².24h ) 。液体瓶水蒸气透过量系指在规定的温度、相对湿度环境中, 一定时间内瓶中水分损失的百分比。单位为: % 。固体瓶水蒸气透过量系指在规定的温度、相对温度环境中,每升容量的瓶在24 小时内透入的水蒸气量。单位为: mg/ C 24h . L) 。输液用容器水蒸气透过量系指在规定的温度、相对湿度环境中,一定时间内容器中水分损失的百分比。单位为: %。《YBB00092003-2015水蒸气透过量测定法》中规定了四种测量方法,第一法杯式法,第二法电解分析法,第三法重量法,第四法红外检测器法(仲裁法)。
 
  物理机械性能
 
  物理机械性能主要包括抗拉强度与伸长率、复合膜剥离强度、热合强度、热收缩性、穿刺力、穿刺器保持性、插入点不渗透性、注药点密封性、悬挂力、铝塑组合盖开启力、耐冲击性能、耐撕裂性能、抗揉搓性能、耐压性能等指标。
 
  2.1、拉伸性能的试验方法
 
  拉伸性能、拉伸强度与伸长率的检测能够有效解决包装材料机械强度不够,在受到外力作用下产生的包装破损与断裂问题。 拉伸强度系指在拉伸试验中,实验直至断裂为止,单位初始横截面上承受的最大拉伸负荷。断裂伸长率系指在拉伸实验中,试样断裂时,标线间距离的增加量与初始标距之比,以百分率表示。
 
薄膜1.png
输液膜袋.png
《YBB00112003-2015拉伸性能测定法》
 
  试样的形状及尺寸
 
  标准中规定了四种类型的试样,前三种为哑铃型试样,第四种为长条形试样。
 
哑铃型试样.JPG
长条形试样.png
试样制备及准备
 
  试样应沿纵、横方向大约等间隔裁取。试样边缘必须平滑无缺口,按试样尺寸要求准确打印或划出标线,标线应对试样产品不产生任何影响。试样按照每个方向为一组,每组试样不少于5个。试样应在23℃±2℃、50%±5%相对湿度环境中放置4小时以上,并在此条件下进行实验。
 
  试验速度(空载),应按各品种项下规定的要求选择速度。速度从1mm/min-500mm/min中分为9档。
 
  测定法
 
  将试样置于试验机的两夹具中,使试样纵轴与上下夹具中心连线相重合,夹具松紧松紧适宜,防止试样滑脱或在夹具中断裂。按照规定的速度开动试验机进行实验。试样断裂后读取断裂时所需负荷以及相对应标线间伸长值。若断裂在标线外的部位时,此试样作废。另取试样重做。
 
TST01 CN.png
          
夹具示意图.png
测试仪器(william威廉中文官网celtec TST-01)         试样夹持示意图
 
  设置实验参数
 
  设置实验次数,实验速度,试样规格尺寸等数据
 
参数设置.JPG
  选择实验程序后进入实验主界面,点击实验按钮,仪器自动完成实验后夹具回位,通过测试界面直接读出需要的测试数据,并且系统自动计算出本次实验的平均值。
 
实验项目选择.JPG
拉伸性能实验结果.JPG
2.2、热合强度测定法
 
  本法适用于塑料热合在塑料或其他基材(如铝箔等)上的热合强度及塑料复合袋的热合强度测定。在产品的保存和运输过程中,若热封强度太低,会导致热封处裂开、药品泄  漏等问题。
 
热封强度试样.png
热封强度试样2.png
依据《YBB00122003-2015热合强度测定法》
 
  试样制备
 
  材料:根据产品项下规定的热合条件,将试样在热封仪上进行热合,从热合中间部位纵向、横向裁取15.0mm加减0.1mm宽的试样各5条。
 
HST01 CN.png
热合试样条.JPG
热封仪(william威廉中文官网HST-01)                   试样条规格
 
  测定法
 
  取试样,以热合部位为中心,打开呈180°,把试样的两端夹在试验机的两个夹具上,试样轴线应于上下夹具中心线重合,并要求松紧适宜,以防止实验前试样滑脱或断裂在夹具内。夹具间距离为50mm,试验速度为300mm/min±30mm/min,读取试样分离或断裂时的最大负荷(拉力试验机示值误差应在1±%之内)。若试样断在夹具内,则此试样作废,另取试样重做。材料以纵向、横向5个试样的算数平均值,复合膜袋以不同热合部位10个试样的平均值作为该样品的热合强度,单位以N/15mm表示。
 
TST01 CN.png
          
热合强度示意图.png
  测试仪器(william威廉中文官网celtec TST-01)                  夹持示意图
 
  设置实验参数
 
  设置实验次数,实验速度300mm/min
 
参数设置.JPG
  选择实验程序后进入实验主界面,点击实验按钮,仪器自动完成实验后夹具回位,通过测试界面直接读出需要的测试数据,并且系统自动计算出本次实验的平均值。
 
实验项目选择.JPG
热封强度实验界面.JPG
2.3、剥离强度测定法
 
  本法适用于塑料复合在塑料或其他基材(如铝箔、纸等)上的各种软质、硬质复合材料剥离强度的测定。剥离强度是指将规定宽度的试样,在一定的速度下,进行T型剥离,测定的到的复合层与基材的平均剥离力。
 
  如果粘强度过低,则极易在包装使用中出现层间分离而产生的泄露、阻隔性能差等问题。
 
  依据《YBB00102003-2015剥离强度测定法》
 
剥离强度试样1.png
 
剥离强度试样2.png
试样制备
 
  取试样适量,将试样宽度方向两端除去50mm,均匀截取纵、横向宽度为15.0mm±0.1mm,长度200mm的试样各5条。复合方向为纵向。沿试样长度方向一端将复合层与基材预先剥开50mm,被剥开部分不得有明显损伤。若不易剥开,可将试样一端约20mm浸入适当溶剂中处理,待溶剂挥发后,再进行剥离强度试验。
 
  测定法
 
  将试样剥开部分的两端分别夹在试验机上下夹具中,使试样剥开部分的纵轴与上、下夹具中心连接线重合,并松紧适宜。实验时,未剥开部分与拉伸方向呈T型,试验速度为300mm/min±30mm/min,记录剥离过程中的剥离力曲线。
 
剥离力曲线取值.png
剥离力典型曲线的取值
 
TST01 CN.png
剥离强度夹持示意图.JPG
  测试仪器(william威廉中文官网celtec TST-01)                  夹持示意图
 
  设置实验参数
 
  设置实验次数,实验速度300mm/min
 
参数设置.JPG
  选择实验程序后进入实验主界面,点击实验按钮,仪器自动完成实验后夹具回位,通过测试界面直接读出需要的测试数据,并且系统自动计算出本次实验的平均值。
 
实验项目选择.JPG
剥离强度实验界面.JPG
  试验结果处理:采取其中相近的取值方式,算出平均剥离强度。试验单位为N/15MM。    注意:复合层不能剥离或复合层断裂时,其剥离强度判为合格,但需确保拉伸强度合格。
 
  2.4、软包装件密封性能实验方法
 
  本标准规定了软包装件密封性能的实验方法,本标准适用于各种材料制成的密封软包装件实验。
 
  《GB/T 15171-94软包装件密封性能实验方法》标准中方法一:此方法用于在水的作用下,外层材料的性能在试验期间不会显著降低的包装件,如外层采用塑料薄膜的包装件。通过对真空室抽真空,使浸泡在水中的试样产生内外压差,观测试样内气体外溢或水向内渗入情况,以此判断试样的密封性能。
 
  2.5、塑料薄膜和薄片厚度的测定-机械测量法
 
  药品包装材料的厚度以及厚度的均匀性是检测其他各项性能的基础。
 
  《GB/T 6672-2001 塑料薄膜和薄片厚度测定-机械测量法》,本标准规定了机械测量法测量塑料薄膜或薄片样品厚度的实验方法。
 
  2.6、塑料薄膜和薄片摩擦系数测定方法
 
  药包材在生产加工、物料填充、包装袋堆码过程中,包装材料表面爽滑性是重要的性能指标,以摩擦系数指标为参考。
 
  《GB 10006-1988塑料薄膜和薄片摩擦系数测定方法》本标准中规定了塑料薄膜和薄片在自身或其他材料表面滑动时静摩擦系数和动摩擦系数的测定方法。
 
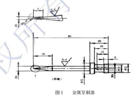
  2.4、注射剂用胶塞垫片穿刺力测定法
 
  本法适用于注射剂用胶塞、垫片穿刺力的测定,穿刺力是指在穿刺实验中,穿刺器刺透胶塞或垫片的最大力值,用牛顿(N)表示。
 
药用胶塞试样.JPG
  《YBB00322004-2015注射剂用胶塞垫片穿刺力测定法》中规定了三种方法,用于注射剂用适合规格的胶塞垫片等产品。方法类似都是以穿刺器以200mm/min±20mm/min的速度做垂直运动,运动期间穿刺器受到的反作用力能被记录,仪器精度为±2N;轴向应有合适的位置放置试样,以使注射剂瓶上的胶塞标记位置能被垂直穿刺。不同的方法对于穿刺针的要求不同。穿刺器要求如下图:第二法为:注射针(外径0.8mm,斜角12°±2°,符合GB 15811-2001)
 
第三法穿刺器.JPG
第一法穿刺器.JPG
第一法穿刺器               第二法穿刺器
 
  测定法
 
  实验仪器
 
TST01 CN.png
穿刺夹具.JPG
设置实验参数
 
  设置实验次数,实验速度200mm/min
 
参数设置.JPG
  选择实验程序后进入实验主界面,点击实验按钮,仪器自动完成实验后夹具回位,通过测试界面直接读出需要的测试数据,并且系统自动计算出本次实验的平均值。
 
穿刺力实验界面.JPG
穿刺力实验界面1.JPG